Porzione di bifamiliare in vendita

Vailate, Via Antonio Meucci
€ 330.000
4 locali 4 locali
110 Mq 110 Mq
2 bagni 2 bagni

Porzione di bifamiliare in vendita

Vailate, Via Antonio Meucci

Descrizione annuncio

VAILATE: NUOVO INTERVENTO EDILIZIO

Consegna per fine 2026.

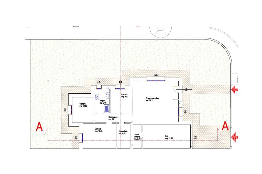
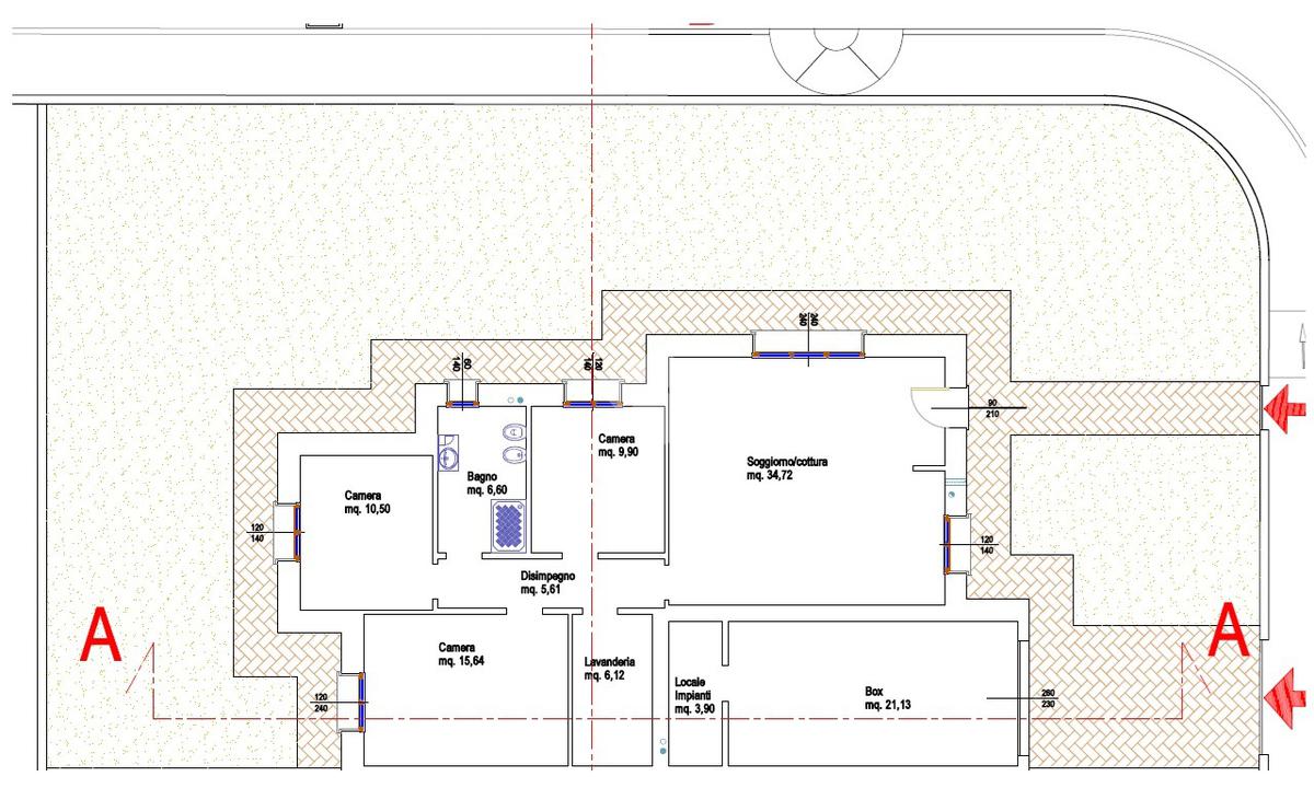
Porzione di bifamiliare disposta su un unico livello di 110 Mq, oltre a 300 Mq di giardino privato e box di circa 28 mq.

La soluzione presenterà un ampio soggiorno con cucina a vista, disimpegno che divide dalla zona notte dove troviamo una camera matrimoniale, due camerette e due bagni entrambi accessoriati di doccia o vasca a scelta della parte acquirente.

L’abitazione sarà dotata di:

-isolamento con cappotto di 14 cm in grafite.

-serramenti in PVC a tapparella.

-portoncino d’ingresso blindato.

-predisposizione di impianto di condizionamento.

-impianto di riscaldamento full Electric con pompa di calore.

-impianto fotovoltaico autonomo da 8 Kwht.

-sistema di ventilazione meccanica controllata (VMC).

Per tutte le ulteriori informazioni potete contattarci al nostro numero o al nostro indirizzo email.

Mostra tutto

Nelle vicinanze

Trasporto pubblico Trasporto pubblico
Trasporto pubblico
110 m
Ricariche auto elettriche Ricariche auto elettriche
Calvenzano XXV Aprile | Ressolar
2,8 Km
Scuole Scuole
Scuole Elementari e Medie
770 m
Scuole
780 m
"Tenente Emanuele Carioni"
1,4 Km
Farmacia Farmacia
Farmacia Sarta
680 m
Farmacia
1,4 Km
Ospedali Ospedali
Ospedale Caimi
590 m
Supermercati Supermercati
Centro Spesa Cervi
580 m
Sma
630 m
Negozi Negozi
Facchetti Mara
520 m
Negozi
780 m
Bar Bar
Calisto Cafè
670 m
Caffè Centrale
790 m
Bar
1,5 Km
Ristoranti Ristoranti
Ristorante pizzeria Al Toscano
70 m
Bar Sport Pizzeria
660 m
I Tarocchi
720 m
Osteria Del Nuzit
810 m
Ristorante Strimon
840 m
Mostra tutto

Caratteristiche

Rif.:
61116654
Piano:
Terra con giardino di 1
Totale piani:
1
Box:
1
Posti auto:
1
Camere da letto:
3
Mostra tutto
Prezzo Prezzo
€ 330.000
Rata mutuo Rata mutuo
€ 1.558 / mese
Spese annue Spese annue
€ 0
Proponi il tuo prezzoProponi il tuo prezzo

Classe Energetica

A4
A4
A4
A4
A4
A4
A4
A4
A4
EP globale non rinnovabile:
10.00 kW h/m² anno
EP globale rinnovabile:
10.00 kW h/m² anno
EP invernale del fabbricato:
EP estiva del fabbricato:
Anno di costruzione:
2026
Riscaldamento:
Autonomo
Tipo impianto:
A pavimento
Tipo alimentazione:
Pannelli

Ti interessa visionare l'immobile?

Fissa un appuntamento  Fissa un appuntamento

Richiedi informazioni

Clicca su Leggi per aprire l'informativa
* Questi campi sono obbligatori

Calcola il tuo mutuo

Semplice e senza impegno
Anticipo

( % )
Mutuo

( % )

pochi semplici passi

inserisci i tuoi dati
Questionario completato
Grazie per aver richiesto un appuntamento senza impegno con un nostro Consulente del Credito e Assicurativo.

Hai inserito correttamente tutti i dati necessari e a breve riceverai una e-mail con un link da convalidare per inviare i tuoi dati.
Affiliato
Studio Vailate Srl
Via Caimi, 59 26019 Vailate (CR)

Il nostro staff


  • Fabio Cattolico
    Responsabile

  • Mariateresa Resigotti
    Coordinatrice

  • Simone Schiano
    Collaboratore

  • William Di Maio
    Collaboratore

  • Sara Guida
    Coordinatrice

  • Andrea Molonia
    Collaboratore
Via Caimi, 59 26019 Vailate (CR)
Zona: Vailate-Calvenzano-Misano Gera D'Adda-Capralba-Quintano-Pieranica-Casaletto Vaprio-Cremosano
Mostra su mappa
Orari: Da Lunedì a Venerdì 9,00-12,30/14,30-20,00; Sabato 9,00-12,30/14,30-17,00
Affiliato
Studio Vailate Srl
Via Caimi, 59 26019 Vailate (CR)

2025 Tecnocasa Franchising S.p.A. - P. IVA 08365160152 - Via Monte Bianco 60/A 20089 Rozzano (MI). Ogni agenzia ha un proprio titolare ed è autonoma. Privacy policy | Policy utilizzo | Cookie policy