Casa indipendente in vendita

Vailate, Centro via Papa Giovanni XXIII
€ 165.000
Prezzo aggiornato
5 locali 5 locali
230 Mq 230 Mq
2 bagni 2 bagni

Casa indipendente in vendita

Vailate, Centro via Papa Giovanni XXIII

Descrizione annuncio

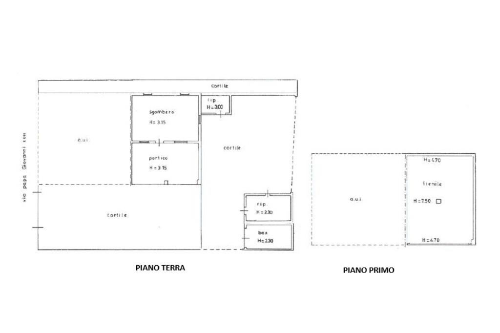
VAILATE: ABITAZIONE PLURIFAMILIARE

Soluzione indipendente composta da due unità immobiliari con accesso separato.

Al piano terra tre locali completamente da ristrutturare, al piano primo troviamo ulteriore tre locali in discreto stato di manutenzione.

Entrambi gli appartamenti dispongono di vari locali accessori,portico, cantina, box ed ampio cortile privato pavimentato oltre ad area esterna, oggi adibita ad orto.

Mostra tutto

Nelle vicinanze

Trasporto pubblico Trasporto pubblico
Trasporto pubblico
210 m
Scuole Scuole
Scuole Elementari e Medie
530 m
Scuole
560 m
"Tenente Emanuele Carioni"
1,7 Km
Farmacia Farmacia
Farmacia Sarta
310 m
Farmacia
1,7 Km
Ospedali Ospedali
Ospedale Caimi
250 m
Supermercati Supermercati
Centro Spesa Cervi
360 m
Sma
660 m
Negozi Negozi
Facchetti Mara
100 m
Negozi
380 m
Bar Bar
Calisto Cafè
350 m
Caffè Centrale
400 m
Bar
1,7 Km
Ristoranti Ristoranti
I Tarocchi
280 m
Bar Sport Pizzeria
290 m
Ristorante pizzeria Al Toscano
400 m
Osteria Del Nuzit
510 m
Ristorante Strimon
530 m
Mostra tutto

Caratteristiche

Rif.:
61137479
Piano:
Su più livelli di 2
Totale piani:
2
Box:
1
Posti auto:
1
Balconi:
1
Mostra tutto
Prezzo Prezzo
€ 165.000
Rata mutuo Rata mutuo
€ 784 / mese
Spese annue Spese annue
€ 0
Proponi il tuo prezzoProponi il tuo prezzo
Immobile valutato con T·Valuta

Classe Energetica

G
G
G
G
G
G
G
G
G
EP globale non rinnovabile:
175.00 kW h/m² anno
EP globale rinnovabile:
175.00 kW h/m² anno
EP invernale del fabbricato:
EP estiva del fabbricato:
Anno di costruzione:
1976
Riscaldamento:
Autonomo
Tipo impianto:
A radiatori
Tipo alimentazione:
Metano

Prezzo ridotto di €1 (3%%)

Ti interessa visionare l'immobile?

Fissa un appuntamento  Fissa un appuntamento

Richiedi informazioni

Clicca su Leggi per aprire l'informativa
* Questi campi sono obbligatori

Calcola il tuo mutuo

Semplice e senza impegno
Anticipo

( % )
Mutuo

( % )

pochi semplici passi

inserisci i tuoi dati
Questionario completato
Grazie per aver richiesto un appuntamento senza impegno con un nostro Consulente del Credito e Assicurativo.

Hai inserito correttamente tutti i dati necessari e a breve riceverai una e-mail con un link da convalidare per inviare i tuoi dati.
Affiliato
Studio Vailate Srl
Via Caimi, 59 26019 Vailate (CR)

Il nostro staff


  • Fabio Cattolico
    Responsabile

  • Simone Schiano
    Collaboratore

  • William Di Maio
    Collaboratore

  • Sara Guida
    Coordinatrice

  • Andrea Molonia
    Collaboratore
Via Caimi, 59 26019 Vailate (CR)
Zona: Vailate-Calvenzano-Misano Gera D'Adda-Capralba-Quintano-Pieranica-Casaletto Vaprio-Cremosano
Mostra su mappa
Orari: Da Lunedì a Venerdì 9,00-12,30/14,30-20,00; Sabato 9,00-12,30/14,30-17,00
Affiliato
Studio Vailate Srl
Via Caimi, 59 26019 Vailate (CR)

2026 Tecnocasa Franchising S.p.A. - P. IVA 08365160152 - Via Monte Bianco 60/A 20089 Rozzano (MI). Ogni agenzia ha un proprio titolare ed è autonoma. Privacy policy | Policy utilizzo | Cookie policy