Rustico in vendita

Vailate, Via Caimi
€ 70.000
5 locali 5 locali
180 Mq 180 Mq
2 bagni 2 bagni

Rustico in vendita

Vailate, Via Caimi

Descrizione annuncio

VAILATE: FABBRICATO STORICO DI PREGIO DA RISTRUTTURARE

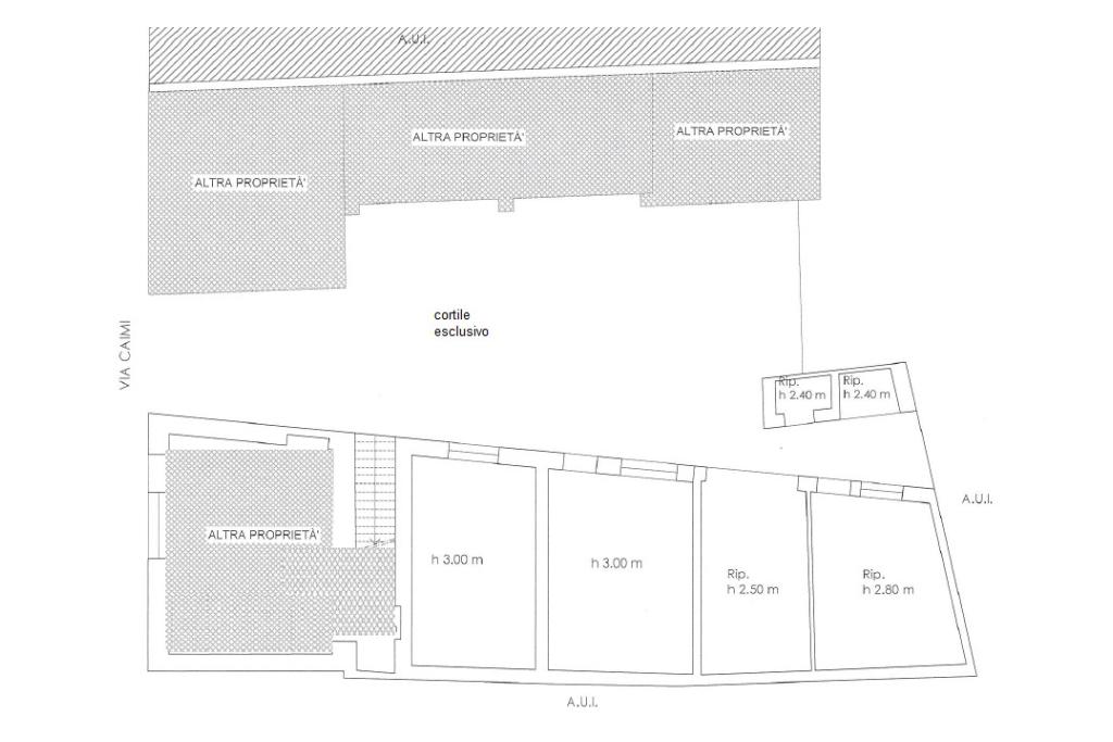
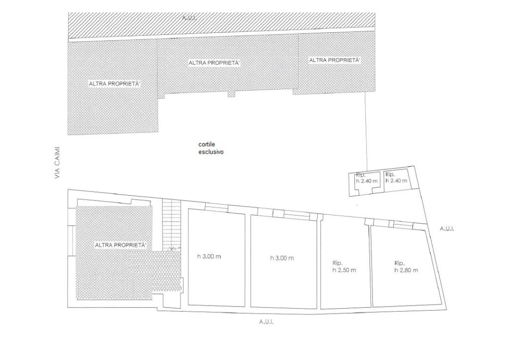
La proprietà esposta sulla via principale gode di accesso indipendente carrale e pedonale che si apre sul cortile interno totalmente privato. Da qui si può accedere al primo fabbricato adibito ad abitazione che si sviluppa sia al pian terreno che al piano primo collegati con una scala interna.

Inoltre vi è accesso, separato, anche al secondo locale, quello principale, adibito ad abitazione posto al piano primo e sviluppato interamente su di un unico livello anche con affaccio sulla via principale.

Al di sopra vi è anche un ampio sottotetto che all'occorrenza può essere recuperato per un ampliamento, accessibile indipendentemente dalle altre unità.

Nel cortile interno vi è accesso anche al box e alle cantine fruibili come tali o come locali di deposito.

La soluzione si considera quasi totalmente da ristrutturare e si presta per la creazione di una grande unità immobiliare.

Oppure da considerare:

- Due unità abitative come da stato di fatto ad oggi.

- fabbricato con studio o ufficio al pian terreno e grande appartamento al piano primo oltre mansarda.

- fabbricato con tre abitazioni recuperando il sottotetto e creando una ulteriore unità abitativa.

Mostra tutto

Nelle vicinanze

Trasporto pubblico Trasporto pubblico
Trasporto pubblico
190 m
Scuole Scuole
Scuole Elementari e Medie
260 m
Scuole
320 m
"Tenente Emanuele Carioni"
1,8 Km
Farmacia Farmacia
Farmacia Sarta
150 m
Farmacia
1,7 Km
Ospedali Ospedali
Ospedale Caimi
230 m
Supermercati Supermercati
Centro Spesa Cervi
310 m
Sma
630 m
Negozi Negozi
Negozi
50 m
Facchetti Mara
330 m
Bar Bar
Caffè Centrale
40 m
Calisto Cafè
190 m
Bar
1,8 Km
Ristoranti Ristoranti
Trattoria Del Gallo
140 m
Bar Sport Pizzeria
160 m
I Tarocchi
170 m
Ristorante Strimon
170 m
Osteria Del Nuzit
190 m
Mostra tutto

Caratteristiche

Rif.:
60988441
Piano:
Su più livelli di 2
Totale piani:
2
Box:
1
Balconi:
1
Camere da letto:
4
Mostra tutto
Prezzo Prezzo
€ 70.000
Rata mutuo Rata mutuo
€ 330 / mese
Spese annue Spese annue
€ 0
Proponi il tuo prezzoProponi il tuo prezzo

Classe Energetica

G
G
G
G
G
G
G
G
G
EP globale non rinnovabile:
500.00 kW h/m² anno
EP globale rinnovabile:
500.00 kW h/m² anno
EP invernale del fabbricato:
EP estiva del fabbricato:
Anno di costruzione:
1967
Riscaldamento:
Autonomo
Tipo impianto:
A radiatori
Tipo alimentazione:
Metano

Ti interessa visionare l'immobile?

Fissa un appuntamento  Fissa un appuntamento

Richiedi informazioni

Clicca su Leggi per aprire l'informativa
* Questi campi sono obbligatori

Calcola il tuo mutuo

Semplice e senza impegno
Anticipo

( % )
Mutuo

( % )

pochi semplici passi

inserisci i tuoi dati
Questionario completato
Grazie per aver richiesto un appuntamento senza impegno con un nostro Consulente del Credito e Assicurativo.

Hai inserito correttamente tutti i dati necessari e a breve riceverai una e-mail con un link da convalidare per inviare i tuoi dati.
Affiliato
Studio Vailate Srl
Via Caimi, 59 26019 Vailate (CR)

Il nostro staff


  • Fabio Cattolico
    Responsabile

  • Mariateresa Resigotti
    Coordinatrice

  • Simone Schiano
    Collaboratore

  • William Di Maio
    Collaboratore

  • Sara Guida
    Coordinatrice

  • Andrea Molonia
    Collaboratore
Via Caimi, 59 26019 Vailate (CR)
Zona: Vailate-Calvenzano-Misano Gera D'Adda-Capralba-Quintano-Pieranica-Casaletto Vaprio-Cremosano
Mostra su mappa
Orari: Da Lunedì a Venerdì 9,00-12,30/14,30-20,00; Sabato 9,00-12,30/14,30-17,00
Affiliato
Studio Vailate Srl
Via Caimi, 59 26019 Vailate (CR)

2025 Tecnocasa Franchising S.p.A. - P. IVA 08365160152 - Via Monte Bianco 60/A 20089 Rozzano (MI). Ogni agenzia ha un proprio titolare ed è autonoma. Privacy policy | Policy utilizzo | Cookie policy