Porzione di bifamiliare in vendita

Pieranica, Via Biagio Boetti
€ 240.000
3 locali 3 locali
115 Mq 115 Mq
1 bagno 1 bagno

Porzione di bifamiliare in vendita

Pieranica, Via Biagio Boetti

Descrizione annuncio

PIERANICA: PORZIONE DI BIFAMILIARE

Nuovo intervento edilizio programmato per la primavera del 2026 con termine lavori estate del 2027.

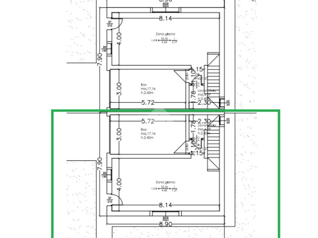
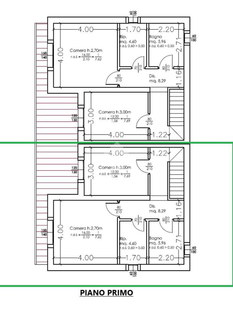
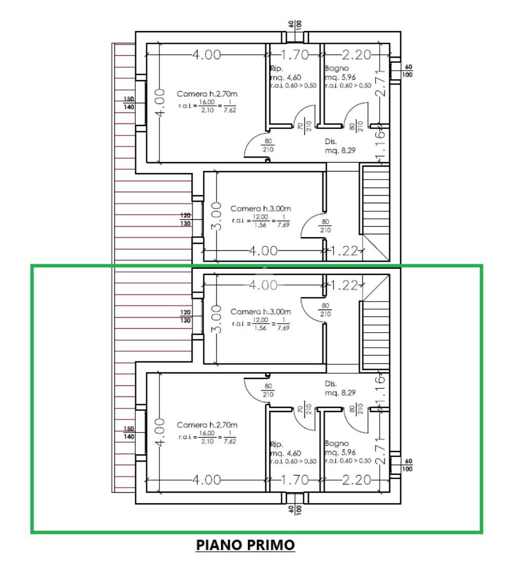
La villa disposta su due livelli, zona giorno composta da sala e cucina a vista, disimpegno e lavanderia. Al piano primo due comode camere da letto, ripostiglio ed ampio bagno con possibilità di vasca e doccia.

L’immobile è completo di un box singolo di circa 18 mq con accesso diretto all’abitazione, oltre che 190 mq di giardino privato con possibilità di un secondo ingresso carrale per la seconda auto all’interno della proprietà.

Le ville dispongono di murature perimetrali portanti con cappotto da 12 cm, tetto in legno con copertura in cementegola, serramenti in PVC, tapparelle elettriche, portoncino d'ingresso blindato e basculante sezionale coibentata predisposta per l'automatizzazione.

Mostra tutto

Nelle vicinanze

Trasporto pubblico Trasporto pubblico
Capralba
Capralba
2,6 Km
Trasporto pubblico
2,6 Km
Trasporto pubblico
290 m
Scuole Scuole
Scuole
2,3 Km
Istituto scolastico I Tigli
3,0 Km
Bar Bar
Bar
420 m
Big Ben
650 m
Mostra tutto

Caratteristiche

Rif.:
61130997
Piano:
Su più livelli di 2
Totale piani:
2
Box:
1
Posti auto:
1
Camere da letto:
2
Mostra tutto
Prezzo Prezzo
€ 240.000
Rata mutuo Rata mutuo
€ 1.133 / mese
Spese annue Spese annue
€ 0
Proponi il tuo prezzoProponi il tuo prezzo

Classe Energetica

A4
A4
A4
A4
A4
A4
A4
A4
A4
EP globale non rinnovabile:
10.00 kW h/m² anno
EP globale rinnovabile:
10.00 kW h/m² anno
EP invernale del fabbricato:
EP estiva del fabbricato:
Anno di costruzione:
2027
Riscaldamento:
Autonomo
Tipo impianto:
A pavimento
Tipo alimentazione:
Altro

Ti interessa visionare l'immobile?

Fissa un appuntamento  Fissa un appuntamento

Richiedi informazioni

Clicca su Leggi per aprire l'informativa
* Questi campi sono obbligatori

Calcola il tuo mutuo

Semplice e senza impegno
Anticipo

( % )
Mutuo

( % )

pochi semplici passi

inserisci i tuoi dati
Questionario completato
Grazie per aver richiesto un appuntamento senza impegno con un nostro Consulente del Credito e Assicurativo.

Hai inserito correttamente tutti i dati necessari e a breve riceverai una e-mail con un link da convalidare per inviare i tuoi dati.
Affiliato
Studio Vailate Srl
Via Caimi, 59 26019 Vailate (CR)

Il nostro staff


  • Fabio Cattolico
    Responsabile

  • Mariateresa Resigotti
    Coordinatrice

  • Simone Schiano
    Collaboratore

  • William Di Maio
    Collaboratore

  • Sara Guida
    Coordinatrice

  • Andrea Molonia
    Collaboratore
Via Caimi, 59 26019 Vailate (CR)
Zona: Vailate-Calvenzano-Misano Gera D'Adda-Capralba-Quintano-Pieranica-Casaletto Vaprio-Cremosano
Mostra su mappa
Orari: Da Lunedì a Venerdì 9,00-12,30/14,30-20,00; Sabato 9,00-12,30/14,30-17,00
Affiliato
Studio Vailate Srl
Via Caimi, 59 26019 Vailate (CR)

2025 Tecnocasa Franchising S.p.A. - P. IVA 08365160152 - Via Monte Bianco 60/A 20089 Rozzano (MI). Ogni agenzia ha un proprio titolare ed è autonoma. Privacy policy | Policy utilizzo | Cookie policy