Casa indipendente in vendita

Cremosano, Via Crema
€ 27.000
3 locali 3 locali
65 Mq 65 Mq
2 bagni 2 bagni

Casa indipendente in vendita

Cremosano, Via Crema

Descrizione annuncio

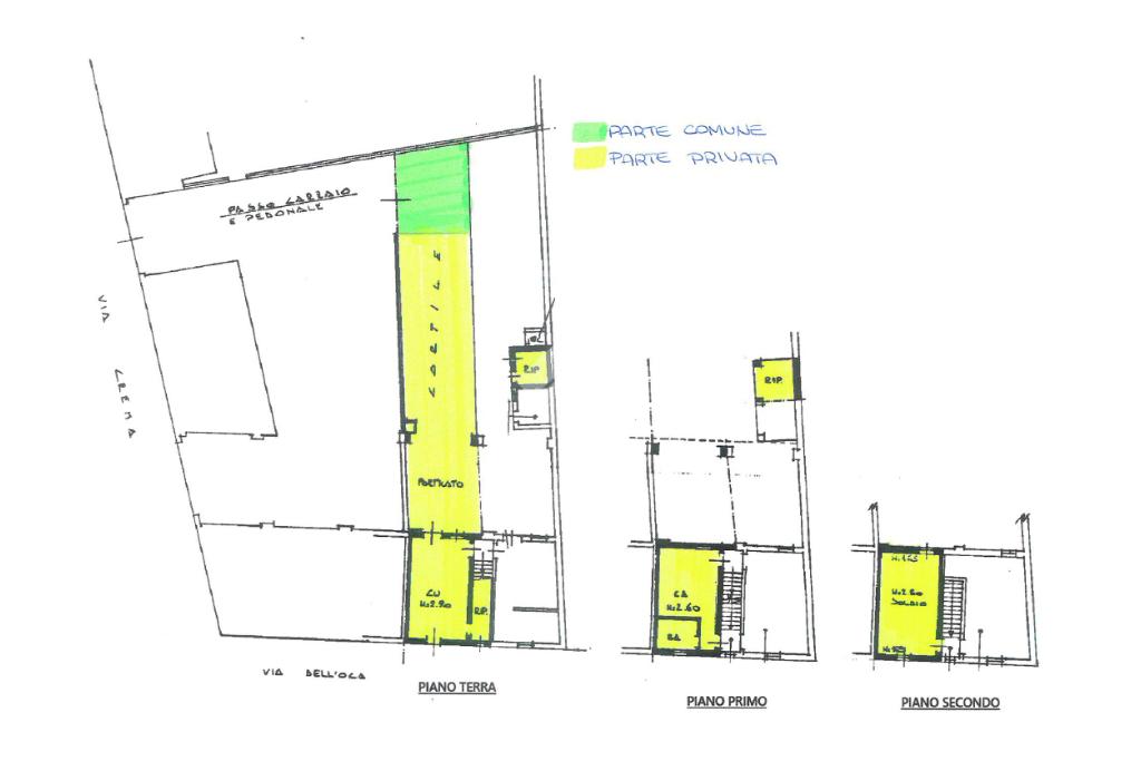
CREMOSANO: ABITAZIONE SEMINDIPENDENTE CON CORTILETTO

Soluzione rurale ubicata nei pressi del centro paese, disposta su più livelli e completa di area esclusiva.

La casa posta in un piccolo cortile di sole 3 unità gode di un cortile d'ingresso esclusivo, portico e accesso al pian terreno dove si trova la zona taverna con angolo cottura e sottoscala. Da qui grazie ad un vano scala condiviso con la proprietà adiacente si raggiunge il piano superiore che ospita il reparto abitativo con bagno e stanza. L'ultimo piano, raggiungibile nelle medesime modalità, è attrezzato come sottotetto.

Immobile in pronta consegna, da considerare da ristrutturare.

Mostra tutto

Nelle vicinanze

Trasporto pubblico Trasporto pubblico
Casaletto Vaprio
Casaletto Vaprio
1,6 Km
Scuole Scuole
Elementare
180 m
Materna
220 m
Scuole
1,9 Km
Farmacia Farmacia
Farmacia San Pancrazio
2,3 Km
Negozi Negozi
Negozi
200 m
Bar Bar
Bar
2,0 Km
Mostra tutto

Caratteristiche

Rif.:
61199756
Piano:
Su più livelli di 3
Totale piani:
3
Posti auto:
2
Camere da letto:
2
Arredamento:
Assente
Mostra tutto
Prezzo Prezzo
€ 27.000
Rata mutuo Rata mutuo
€ 127 / mese
Spese annue Spese annue
€ 0
Proponi il tuo prezzoProponi il tuo prezzo

Classe Energetica

G
G
G
G
G
G
G
G
G
EP globale non rinnovabile:
300.00 kW h/m² anno
EP globale rinnovabile:
300.00 kW h/m² anno
EP invernale del fabbricato:
EP estiva del fabbricato:
Anno di costruzione:
1967
Riscaldamento:
Autonomo
Tipo impianto:
A radiatori
Tipo alimentazione:
Metano

Ti interessa visionare l'immobile?

Fissa un appuntamento  Fissa un appuntamento

Richiedi informazioni

Clicca su Leggi per aprire l'informativa
* Questi campi sono obbligatori

Calcola il tuo mutuo

Semplice e senza impegno
Anticipo

( % )
Mutuo

( % )

pochi semplici passi

inserisci i tuoi dati
Questionario completato
Grazie per aver richiesto un appuntamento senza impegno con un nostro Consulente del Credito e Assicurativo.

Hai inserito correttamente tutti i dati necessari e a breve riceverai una e-mail con un link da convalidare per inviare i tuoi dati.
Affiliato
Studio Vailate Srl
Via Caimi, 59 26019 Vailate (CR)

Il nostro staff


  • Fabio Cattolico
    Responsabile

  • Simone Schiano
    Collaboratore

  • William Di Maio
    Collaboratore

  • Sara Guida
    Coordinatrice

  • Andrea Molonia
    Collaboratore
Via Caimi, 59 26019 Vailate (CR)
Zona: Vailate-Calvenzano-Misano Gera D'Adda-Capralba-Quintano-Pieranica-Casaletto Vaprio-Cremosano
Mostra su mappa
Orari: Da Lunedì a Venerdì 9,00-12,30/14,30-20,00; Sabato 9,00-12,30/14,30-17,00
Affiliato
Studio Vailate Srl
Via Caimi, 59 26019 Vailate (CR)

2026 Tecnocasa Franchising S.p.A. - P. IVA 08365160152 - Via Monte Bianco 60/A 20089 Rozzano (MI). Ogni agenzia ha un proprio titolare ed è autonoma. Privacy policy | Policy utilizzo | Cookie policy