Rustico in vendita

Casaletto Di Sopra, Via Romanengo
€ 59.000
Prezzo aggiornato
4 locali 4 locali
500 Mq 500 Mq

Rustico in vendita

Casaletto Di Sopra, Via Romanengo

Descrizione annuncio

MELOTTA:

A pochi Km da Soncino e da Crema

Sulla strada provinciale Melotta, cascinale storico disposto su due livelli con un'area esterna verde agricola di 2400 Mq.

IDEALE SIA PER RISTRUTTURAZIONE ABITATIVA SIA COME DEPOSITI O LABORATORI ARTIGIANALI.

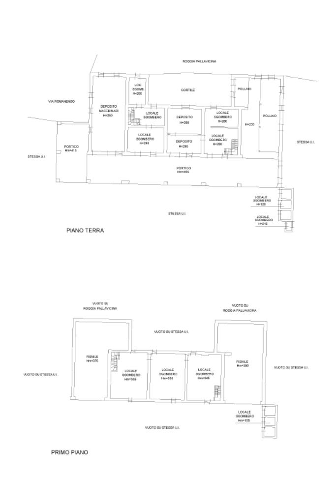
L'ingresso alla proprietà da strada comunale si apre sull'ampia aia di oltre 1000 Mq dalla quale si accede al porticato coperto frontale di oltre 150 Mq. Oltre al cortile pertinenziale vi è anche un ampio appezzamento di terra di ulteriori 1400 Mq. Il fabbricato, da sempre utilizzato come abitazione (300 Mq) si presenta al pian terreno utile a due unità avendo due accessi, entrambi gli ambienti godono di scala interna che conduce al piano superiore dove erano disposte le tre grandi camere da letto, collegate tra loro, caratterizzate da alti soffitti con travi.

Agli esterni del fabbricato, da una parte ampio deposito/rimessa al piano terra di 70 Mq con soprastante fienile e dall'altro versante un ulteriore porticato fruito come pollaio sempre con soprastante fienile.

Alle spalle della struttura, accessibile dagli ambienti interni, piccolo cortile interno che si affaccia sul canale.

La struttura richiede importanti interventi edilizi come rifacimento della copertura, impianti, isolamenti e infissi oltre che collegamento alla fognatura e ripristino della destinazione urbanistica in abitazione. Si presta per una o più unità familiari che vogliano godere di intimità e di ampi spazzi abitativi oltre che una grande disponibilità esterna per utilizzo privato o di piccola impresa.

Si specifica che la riqualificazione andrà effettuata mantenendo la stessa forma edificatoria, non si può abbattere e ricostruire al di fuori della sagoma già esistente.

Mostra tutto

Caratteristiche

Rif.:
60663734
Piano:
Su più livelli di 2
Totale piani:
2
Box:
2
Posti auto:
2
Camere da letto:
3
Mostra tutto
Prezzo Prezzo
€ 59.000
Rata mutuo Rata mutuo
€ 271 / mese
Spese annue Spese annue
€ 0
Proponi il tuo prezzoProponi il tuo prezzo

Classe Energetica

G
G
G
G
G
G
G
G
G
EP globale non rinnovabile:
300.00 kW h/m² anno
EP globale rinnovabile:
300.00 kW h/m² anno
EP invernale del fabbricato:
EP estiva del fabbricato:
Anno di costruzione:
1800
Riscaldamento:
Assente

Prezzo ridotto di €1 (16%%)

Ti interessa visionare l'immobile?

Fissa un appuntamento  Fissa un appuntamento

Richiedi informazioni

* Questi campi sono obbligatori

Calcola il tuo mutuo

Semplice e senza impegno
Anticipo

( % )
Mutuo

( % )

pochi semplici passi

inserisci i tuoi dati
Questionario completato
Grazie per aver richiesto un appuntamento senza impegno con un nostro Consulente del Credito e Assicurativo.

Hai inserito correttamente tutti i dati necessari e a breve riceverai una e-mail con un link da convalidare per inviare i tuoi dati.
Affiliato
Studio Vailate Srl
Via Caimi, 59 26019 Vailate (CR)

Il nostro staff


  • Fabio Cattolico
    Responsabile

  • Mariateresa Resigotti
    Coordinatrice

  • Simone Schiano
    Collaboratore

  • William Di Maio
    Collaboratore

  • Sara Guida
    Coordinatrice

  • Andrea Molonia
    Collaboratore
Via Caimi, 59 26019 Vailate (CR)
Zona: Vailate-Calvenzano-Misano Gera D'Adda-Capralba-Quintano-Pieranica-Casaletto Vaprio-Cremosano
Mostra su mappa
Orari: Da Lunedì a Venerdì 9,00-12,30/14,30-20,00; Sabato 9,00-12,30/14,30-17,00
Affiliato
Studio Vailate Srl
Via Caimi, 59 26019 Vailate (CR)

2025 Tecnocasa Franchising S.p.A. - P. IVA 08365160152 - Via Monte Bianco 60/A 20089 Rozzano (MI). Ogni agenzia ha un proprio titolare ed è autonoma. Privacy policy | Policy utilizzo | Cookie policy