Villa singola in vendita

Capralba, Via Piave
€ 179.000
3 locali 3 locali
130 Mq 130 Mq
1 bagno 1 bagno

Villa singola in vendita

Capralba, Via Piave

Descrizione annuncio

CAPRALBA: VILLA SINGOLA

Soluzione in posizione strategica del paese, edificata negli anni 70' con giardino esclusivo su quattro lati.

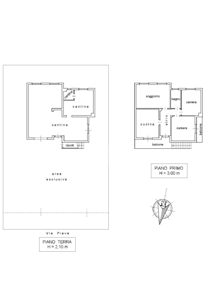
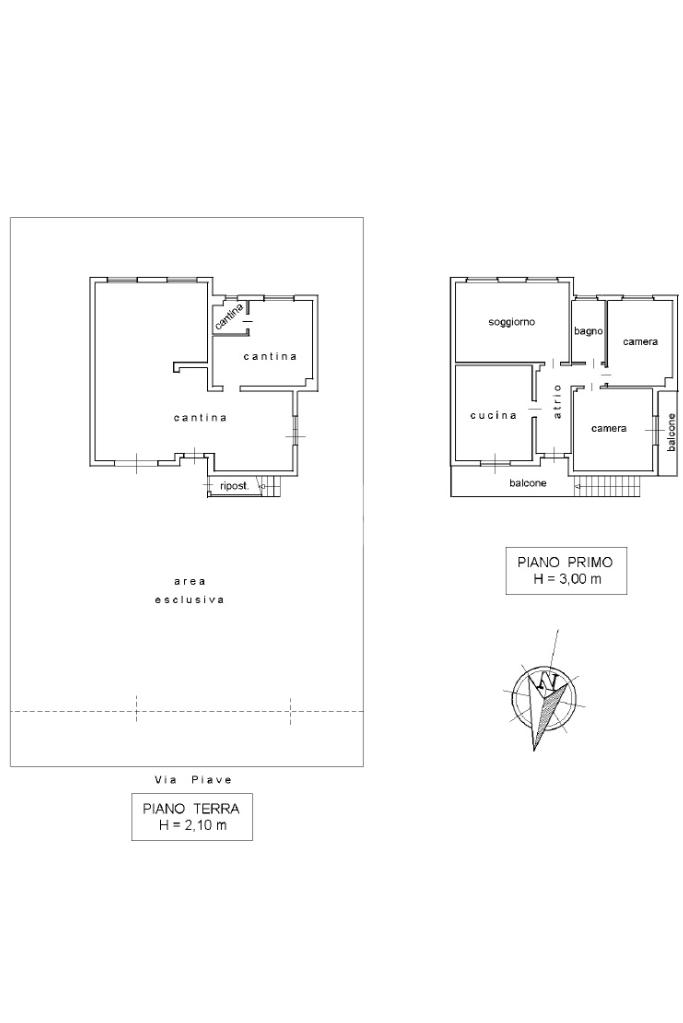
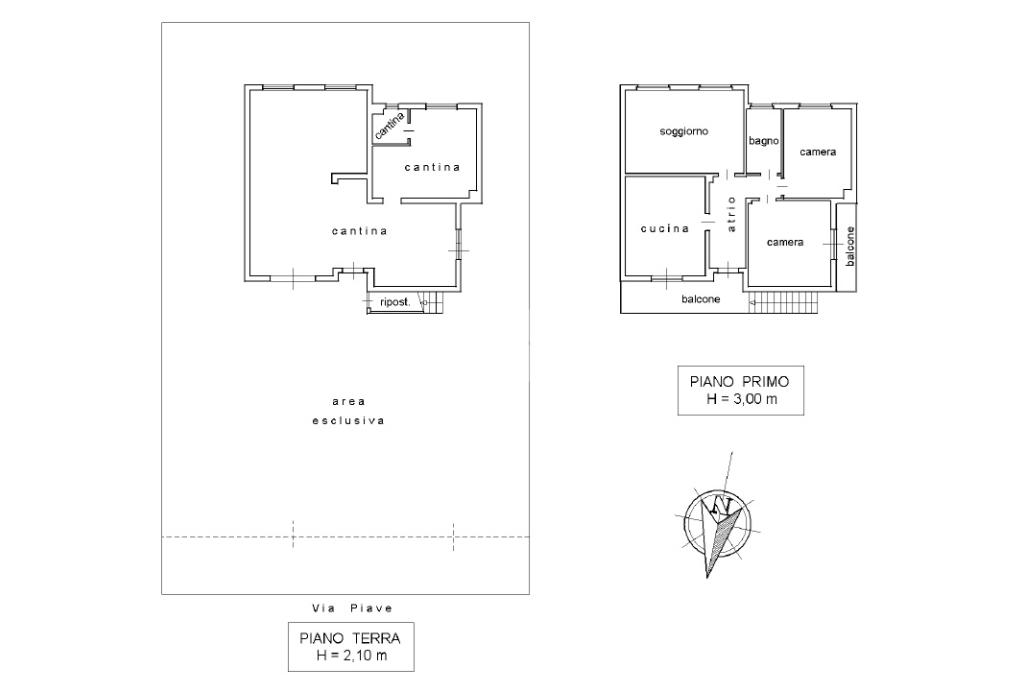
Totalmente indipendente, disposta su due piani, attualmente al piano terra dispone di un ampio locale adibito a taverna/box, oltre ampia lavanderia.

Al piano rialzato troviamo invece l'unità abitativa completa di ingresso, zona giorno con ampia cucina abitabile, salotto luminoso esposto a sud, bagno e due camere da letto di cui una con balcone a caratterizzare la zona notte.

Soluzione in buone condizioni di mantenimento, possibilità di migliorie estetiche e/o strutturali da valutare.

Disponibilità immediata.

Mostra tutto

Nelle vicinanze

Trasporto pubblico Trasporto pubblico
Capralba
Capralba
140 m
Trasporto pubblico
170 m
Trasporto pubblico
3,0 Km
Scuole Scuole
Istituto scolastico I Tigli
170 m
Mostra tutto

Caratteristiche

Rif.:
61149828
Piano:
1 di 2 (Piano rialzato)
Box:
1
Balconi:
1
Camere da letto:
2
Arredamento:
Assente
Mostra tutto
Prezzo Prezzo
€ 179.000
Rata mutuo Rata mutuo
€ 845 / mese
Spese annue Spese annue
€ 0
Proponi il tuo prezzoProponi il tuo prezzo

Classe Energetica

G
G
G
G
G
G
G
G
G
EP globale non rinnovabile:
423.64 kW h/m² anno
EP globale rinnovabile:
423.64 kW h/m² anno
EP invernale del fabbricato:
EP estiva del fabbricato:
Anno di costruzione:
1967
Riscaldamento:
Autonomo
Tipo impianto:
A radiatori
Tipo alimentazione:
Metano

Ti interessa visionare l'immobile?

Fissa un appuntamento  Fissa un appuntamento

Richiedi informazioni

Clicca su Leggi per aprire l'informativa
* Questi campi sono obbligatori

Calcola il tuo mutuo

Semplice e senza impegno
Anticipo

( % )
Mutuo

( % )

pochi semplici passi

inserisci i tuoi dati
Questionario completato
Grazie per aver richiesto un appuntamento senza impegno con un nostro Consulente del Credito e Assicurativo.

Hai inserito correttamente tutti i dati necessari e a breve riceverai una e-mail con un link da convalidare per inviare i tuoi dati.
Affiliato
Studio Vailate Srl
Via Caimi, 59 26019 Vailate (CR)

Il nostro staff


  • Fabio Cattolico
    Responsabile

  • Mariateresa Resigotti
    Coordinatrice

  • Simone Schiano
    Collaboratore

  • William Di Maio
    Collaboratore

  • Sara Guida
    Coordinatrice

  • Andrea Molonia
    Collaboratore
Via Caimi, 59 26019 Vailate (CR)
Zona: Vailate-Calvenzano-Misano Gera D'Adda-Capralba-Quintano-Pieranica-Casaletto Vaprio-Cremosano
Mostra su mappa
Orari: Da Lunedì a Venerdì 9,00-12,30/14,30-20,00; Sabato 9,00-12,30/14,30-17,00
Affiliato
Studio Vailate Srl
Via Caimi, 59 26019 Vailate (CR)

2025 Tecnocasa Franchising S.p.A. - P. IVA 08365160152 - Via Monte Bianco 60/A 20089 Rozzano (MI). Ogni agenzia ha un proprio titolare ed è autonoma. Privacy policy | Policy utilizzo | Cookie policy