Villa singola in vendita

Calvenzano, Via Ambrogio Blini
€ 425.000
4 locali 4 locali
145 Mq 145 Mq
2 bagni 2 bagni

Villa singola in vendita

Calvenzano, Via Ambrogio Blini

Descrizione annuncio

QUI NASCE LA TUA NUOVA CASA!

Ville di nuova generazione, design esterno innovativo a tetto piano, con alta efficienza termica ed acustica.

Impiantistica futuristica con possibilità di scelta delle finiture interne.

CALVENZANO: VILLA SINGOLA SU UNICO LIVELLO DI NUOVA COSTRUZIONE

Consegna per primavera/estate 2027.

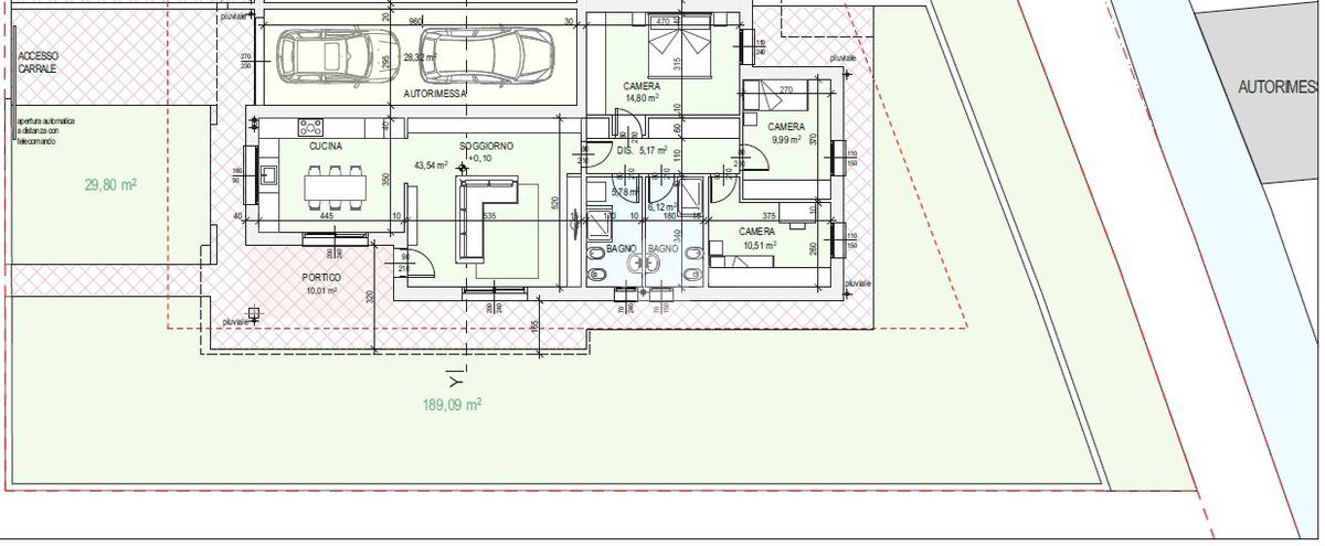
Prenotiamo villa di quattro locali e doppi servizi, disposta su un unico livello di 123 Mq circa, oltre a 320 Mq di giardino privato, portico di 18 Mq e box di 30 Mq.

La soluzione presenterà un ampio soggiorno con cucina abitabile, disimpegno che divide dalla zona notte dove troveremo una camera matrimoniale, due camerette e due bagni entrambi con doccia.

L'abitazione sarà dotata di:

-isolamento con cappotto di 12 cm.

-serramenti in legno di pino, dotati di sistema di oscuramento con tapparelle motorizzate in alluminio coibentato (colore da definire).

-portoncino d'ingresso blindato.

-predisposizione di impianto di condizionamento.

-impianto di riscaldamento full Electric con pompa di calore del tipo Daikin.

-impianti fotovoltaici.

Per tutte le ulteriori informazioni potete contattarci al nostro numero o al nostro indirizzo email.

Mostra tutto

Nelle vicinanze

Trasporto pubblico Trasporto pubblico
stazione di Treviglio
stazione di Treviglio
1,9 Km
Treviglio Ovest
Treviglio Ovest
2,8 Km
Treviglio Pizzale Ospedale
Treviglio Pizzale Ospedale
1,6 Km
Trasporto pubblico
1,8 Km
Ricariche auto elettriche Ricariche auto elettriche
Calvenzano XXV Aprile | Ressolar
750 m
Fiera di Treviglio | EnelX
1,8 Km
ENERCOOP Treviglio
2,0 Km
Centro Ricreativo Sportivo Casirate | EnelX
2,3 Km
Treviglio Crivelli | EnelX
2,3 Km
Scuole Scuole
Scuola Dante Alighieri
430 m
Centro formazione professionale
1,8 Km
Istituto Superiore "Archimede"
1,8 Km
Scuole
1,9 Km
Istituto Superiore "Guglielmo Oberdan"
2,1 Km
Farmacia Farmacia
Farmacia Comunale 3
2,1 Km
Farmacia
2,3 Km
Farmacia Dottori Piccinelli
2,4 Km
Farmacia Dottor Guarnieri
2,5 Km
Farmacia Morello
2,6 Km
Ospedali Ospedali
Azienda Ospedaliera Treviglio Caravaggio
1,7 Km
Supermercati Supermercati
IperCoop
2,1 Km
Aldi
2,1 Km
Carrefour Market
2,5 Km
Leader Price
2,5 Km
MD
2,5 Km
Negozi Negozi
Negozi
2,3 Km
OVS
2,5 Km
Tezenis
2,5 Km
Maggi
2,8 Km
Celiachia Store
2,9 Km
Bar Bar
Altitudine 113
430 m
Mokado
1,9 Km
Station Cafè
1,9 Km
Paolo Riva
2,0 Km
Parond
2,1 Km
Ristoranti Ristoranti
Ristorante Gran Gusto Treviglio
1,8 Km
Ristoranti
1,9 Km
PizzaRound
2,1 Km
Dal Carletto
2,2 Km
Hamburger & Co.
2,3 Km
Mostra tutto

Caratteristiche

Rif.:
61175045
Piano:
Terra con giardino di 1
Totale piani:
1
Box:
1
Posti auto:
1
Camere da letto:
3
Mostra tutto
Prezzo Prezzo
€ 425.000
Rata mutuo Rata mutuo
€ 2.019 / mese
Spese annue Spese annue
€ 0
Proponi il tuo prezzoProponi il tuo prezzo
Immobile valutato con T·Valuta

Classe Energetica

A4
A4
A4
A4
A4
A4
A4
A4
A4
EP globale non rinnovabile:
10.00 kW h/m² anno
EP globale rinnovabile:
10.00 kW h/m² anno
EP invernale del fabbricato:
EP estiva del fabbricato:
Anno di costruzione:
2027
Riscaldamento:
Autonomo
Tipo impianto:
A pavimento
Tipo alimentazione:
Pannelli

Ti interessa visionare l'immobile?

Fissa un appuntamento  Fissa un appuntamento

Richiedi informazioni

Clicca su Leggi per aprire l'informativa
* Questi campi sono obbligatori

Calcola il tuo mutuo

Semplice e senza impegno
Anticipo

( % )
Mutuo

( % )

pochi semplici passi

inserisci i tuoi dati
Questionario completato
Grazie per aver richiesto un appuntamento senza impegno con un nostro Consulente del Credito e Assicurativo.

Hai inserito correttamente tutti i dati necessari e a breve riceverai una e-mail con un link da convalidare per inviare i tuoi dati.
Affiliato
Studio Vailate Srl
Via Caimi, 59 26019 Vailate (CR)

Il nostro staff


  • Fabio Cattolico
    Responsabile

  • Simone Schiano
    Collaboratore

  • William Di Maio
    Collaboratore

  • Sara Guida
    Coordinatrice

  • Andrea Molonia
    Collaboratore
Via Caimi, 59 26019 Vailate (CR)
Zona: Vailate-Calvenzano-Misano Gera D'Adda-Capralba-Quintano-Pieranica-Casaletto Vaprio-Cremosano
Mostra su mappa
Orari: Da Lunedì a Venerdì 9,00-12,30/14,30-20,00; Sabato 9,00-12,30/14,30-17,00
Affiliato
Studio Vailate Srl
Via Caimi, 59 26019 Vailate (CR)

2026 Tecnocasa Franchising S.p.A. - P. IVA 08365160152 - Via Monte Bianco 60/A 20089 Rozzano (MI). Ogni agenzia ha un proprio titolare ed è autonoma. Privacy policy | Policy utilizzo | Cookie policy